Дом в поселке Чароит КП (п.Ватутинки), 700 м2

Цена: 130 000 000 руб.
Код объекта: 520-410

Современная вилла с внутренним приватным двором-патио, реализованным с учетом российского климата. Общая площадь патио 90кв.м разделена на две части. Первая часть около 40 кв.м - отапливается и застеклена от пола до потолка и также имеет стеклянную подогреваемую крышу (мощная конструкция из теплого алюминия). Здесь огромный стол для застолий и много живых растений. Из этой застекленной веранды через проем шириной 2,5м (летом можно держать открытым) попадаем во вторую часть патио - открытую, где размещены мангал, гриль, стол и зона кострища. Дом функционально спроектирован для проживания большой семьи (всего 9 спален, в том числе 2 мастер-спальни) из нескольких поколений - есть по две размещенных по разные стороны патио кухни, столовых, гостиных и даже два входа в дом. Также есть общие зона СПА с бассейном и сауной, игровая и тренажерный зал, большой аквариум. Солидная отделка и меблировка, элитные материалы и оборудование. Дом расположен на прилесном участке с парковым ландшафтом, в самой тихой и приватной, удаленной от внешнего мира части элитного поселка, граничащего с территорией  дома отдыха Управделами Президента. В пешей доступности полная городская  инфраструктура Новой Москвы.

Общая площадь строений: 700 м2
Количество уровней: 4
Спален: 9. С/узлов: 6. Комнат всего: 13.
Опции: бассейн; машиномест крытых: 2, в т.ч. в теплом гараже: 2; сауна; купель; терраса; камин; холодный подвал; аквариум, двухсветная гостиная, застекленный внутренний двор (патио) со стеклянным подогреваемым потолком..
Материал стен: керамические блоки + утеплитель, общая толщина стены 60 см
Облицовка стен: штукатурка
Стадия готовности: меблирован
Цоколь: небольшой этаж с техническими помещениями: гардеробная 12 кв.м, холодная кладовая 12 кв.м, кладовая 2 кв.м с оружейным сейфом, тепловой узел 14,5 кв.м с отдельным входом, техническое помещение (для водоподготовки и хранения) 7,5 кв.м
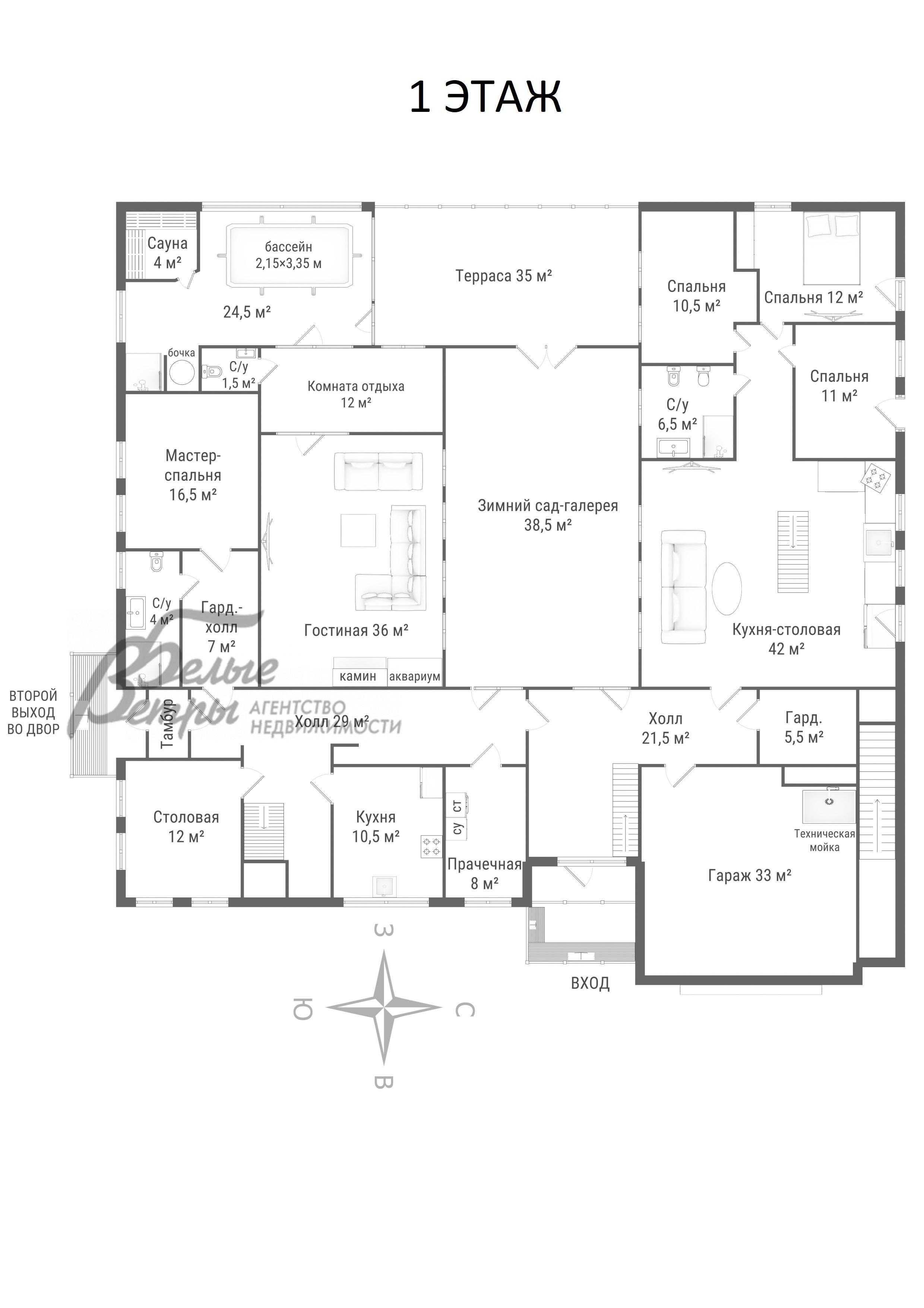
1-ый этаж: В доме два входа. Главный вход с крыльцом и застекленным тамбуром переходящим в прихожую. Второй вход также с крыльцом и застекленным тамбуром. Между входами холл 29 кв.м, из которого входы в один из мастер-блоков (со спальней 16.6 кв.м, гардеробной 6.8 кв.м и санузлом 3.9 кв.м с душем), а также в главные общие помещения - кухню 10,4 кв.м, столовую 12.1 кв.м и двухсветную гостиную 36.2 кв.м (с камином и аквариумом), а также постирочную 7.7 кв.м. Также в дом можно попасть через гараж 33.3 кв.м на 2 авто с системой хранения, технической (и также для собак) мойкой и автоматическими подъемными воротами (с люком для собаки). Функциональным центром дома является патио, состоящее их двух частей. Первая часть ок. 38,5 кв.м - отапливаемая и застекленная от пола до потолка и также с застекленной и обогреваемой кровлей (мощная конструкция из теплого алюминия стоимостью 8 мл.р.). Из нее через широкий проем вторая часть патио - открытая терраса ок. 50 кв.м. Через второй холл 21.5 кв.м попадаем в расположенную с другой стороны патио (с отдельным входом на патио) второй функциональный блок дома. В нём на первом этаже: кухня-столовая-гостиная 42 кв.м три спальни 10.8 кв.м, 12.1 кв.м и 10.6 кв.м кв.м и санузел 6.5 кв.м (с душем). Также в доме СПА-зона, с бассейном (2.15×3.35 м, глубиной до 1.85 м, оборудован для детей), сауной, туалетом, душевой, обливной бочкой и комнатой отдыха 12 кв.м.
2-ой этаж: холл 18 кв.м с выходом на утеплённую террасу с зимним садом 21 кв.м, рядом: холл-галерея над 2ым светом гостиной, мастер-спальня 25.2 кв.м с гардеробной 10.5 кв.м, санузлом 10 кв.м (с душем и большой ванной), спальня (детская) 13.2 кв.м, санузел 9.1 кв.м (с душем), кабинет 10.7 кв.м со своим большим балконом 7 кв.м. Коридор соединяет со вторым блоком дома - спальня 36 кв.м (с камином и остеклением от пола до потолка шириной 5м), игровая (с отдельной лестницей на 1ый этаж), спальня 25 кв.м, санузел 10 кв.м (с душем).
3-ий этаж: только над частью дома: помещение под тренажерный зал и/или игровую 52,5 кв.м, с мансардным окном и со скатными потолками от 1.67 до 2,74м, отделано вагонкой, также кладовая-чемоданнная (подкровельное пространство) площадью 50 кв.м
Описание внутренней отделки: выполнена стильная и уютная отделка, выдержанная в тёплых светло‑бежевых нейтральных тонах, с использованием дорогостоящих материалов. Полы: общие помещения и санузлы - керамогранит и плитка с теплым полом, в жилых комнатах - дубовый паркет. Основная часть потолков — многоуровневые, из гипсокартона; в отапливаемой части патио - стеклянная конструкция из теплого алюминия, с подогревом. Установлены деревянные двери марки Union и дубовые подоконники. Интерьер дополняют два камина: первый украшает двухсветную гостиную, второй расположен в спальне на втором этаже. В доме предусмотрено несколько лестниц: главная построена на бетонном основании, ступени отделаны массивом ореха, вторая лестница также имеет бетонное основание, каркас выполнен из дерева. Тренажерная-игровая на мансардном этаже отделана вагонкой. В сауне: электрическая печь Harvia, полки - абаш, стены - липа, современное обливное ведро 50 литров. Во все доме - качественное освещение.
Инженерное обеспечение: Отопление — центральное, с дополнительным резервным бойлером объёмом 200 л, оснащённым медной обвязкой. Горячее водоснабжение подключено к центральной сети поселка. Установлена система водоподготовки Экодар. Вентиляция - естественая, в зоне СПА - принудительная. Комфорт микроклимата поддерживают три кондиционера: один расположен в детском отсеке, второй — на кухне, третий — возле кабинета на втором этаже. Безопасность дома обеспечена установкой пультовой охраны
Мебель, оборудование: Две кухни полностью оборудованные мебелью и техникой, в том числе новая итальянская от компании Viera (цвета слоновой кости), со всей встроенной техникой, включая винный шкаф. В гостиной большой диван от Dream Catchers (ткань - антикошка) и большой телевизор, огромный (ок.850л) аквариум с рыбками. Во всем доме установлена импортная и заказная мебель: шкафы, системы хранения, кровати, диваны, стулья, столы. Несколько телевизоров. В санузлах — импортная сантехника брендов Villeroy & Boch (раковины, унитазы, биде), Hatria и Huppe (душевые кабины). Новая гардеробная в мастер блоке, большой сейф. Полностью оборудованная общая гардеробная на 2-м этаже, встроенные шкафы в прихожей, встроенные шкафы в цокольном этаже для хранения несезонных вещей.
Дополнительные строения: хозяйственный блок для хранения инструментов, аутентичная скамейка вокруг старого дерева

Участок

Площадь участка, соток: 16
Тип участка: с вековыми деревьями и ландшафтом
Благоустройство участка: На участке растут многолетние деревья: двенадцать сосен, три берёзы, пять елей, четыре клёна, одна лиственница и три рябины. Высажены шесть туй и восемнадцать кустов можжевельника. Проложены дорожки, установлены светильники и скамейки. По всему участку, включая зону вокруг дома, выполнен дренаж, разведен автополив.

Полная информация об объекте в поселке Чароит КП (п.Ватутинки)

Фото


Планировки