Дом в аренду в поселке Чароит КП (п.Ватутинки), 700 м2

Цена: 450 000 руб.
Код объекта: 520-013

В аренду современный стильный дом 700 кв.м с бассейном и большой площадью остекления в элитном обжитом коттеджном поселке Чароит, прилегающем к санаторию УДП Ватутинки. Дом имеет два автономных блока, рассчитанных на проживание большой семьи из двух поколений либо с большим штатом персонала. Функциональная планировка включает в себя 9 спален и 6 санузлов, просторную гостиную со вторым светом, отдельные помещения кухни и столовой, игровые, зону спа с бассейном и три террасы для летнего и круглогодичного отдыха. Прилегающая к поселку территория санатория находится в заповедном лесном массиве на берегу реки Десна и имеет большую прогулочную зону, бассейны, сауны, рестораны, спортивно-игровой зал, медпункт и др. В шаговой доступности развитая городская инфраструктура поселков Новые Ватутинки, Ватутинки и г.Троицк (школы, детские сады, поликлиника, супермаркеты и др.).

Общая площадь строений: 700 м2
Количество уровней: 4
Спален: 9. С/узлов полных: 5. С/узлов неполных: 1. Комнат всего: 13.
Опции: бассейн; машиномест крытых: 2, в т.ч. в теплом гараже: 2; сауна; квартира для персонала; камин; холодный подвал.
Материал стен: керамические блоки
Облицовка стен: штукатурка
Стадия готовности: меблирован
Цоколь: коридор 6 кв.м, кладовая 2 кв.м, помещение для очистки воды 7.5 кв.м, котельная 14.5 кв.м
1-ый этаж: Основной дом: гараж 33 кв.м, крыльцо 2 кв.м, тамбур 2 кв.м, холл 21.5 кв.м, гардеробная 5.5 кв.м, постирочная 8 кв.м, закрытая теплая терраса 55 кв.м, открытая терраса 35 кв.м, гостиная со вторым светом 36 кв.м, зона спа (комната отдыха 12 кв.м, сауна 4 кв.м, помещение с бассейном и двумя душевыми 24.5 кв.м, санузел 1.5 кв.м), холл 29 кв.м, кухня 10.5 кв.м, столовая 12 кв.м, тамбур 2.3 кв.м, крыльцо 3 кв.м, мастер блок: спальня 16.5 кв.м, санузел с душевой 4 кв.м, гардеробная/холл 7 кв.м; Блок для персонала: кухня-столовая 42 кв.м, спальня 11 кв.м, спальня 12 кв.м, спальня 10 кв.м, санузел 6.5 кв.м
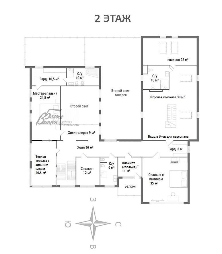
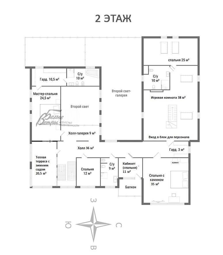
2-ой этаж: Основной дом: теплая терраса с зимним садом 20.5 кв.м, мастер-блок: спальня 24.5 кв.м с гардеробной 10.5 кв.м и санузлом с ванной и душевой 10 кв.м, холл/галерея 9 кв.м, холл 36 кв.м, спальня 12 кв.м, санузел с душевой 9 кв.м, кабинет (спальня) 11 кв.м с балконом, спальня с камином и панорамными окнами 35 кв.м, гардеробная 3 кв.м; Блок для персонала: детская игровая 48 кв.м, спальня 25 кв.м, санузел с душевой 10 кв.м
3-ий этаж: спортзал 35 кв.м
Описание внутренней отделки: Стильная современная отделка в минималистичном стиле в светлых тонах. В отделке стен использованы окрашивание и венецианская штукатурка. Полы - плитка с системой "теплый пол" (комбинированный: электрический и водяной), паркетная доска, рогожка. Потолки - ГКЛ, во влажных зонах натяжные, в закрытой террасе на первом этаже стеклянный с электрическим подогревом. Двери деревянные Union. Сантехника Villeroy & Boch, Hatria, Huppe.
Инженерное обеспечение: отопление и водоснабжение центральные, установлен резервный бойлер на 200л с медной обвязкой, многоступенчатая система очистки воды Экодар. Вентиляция частично принудительная, а также установлены кондиционеры (в блоке для персонала, в кухне и у кабинета на втором этаже). Wi-Fi роутеры. Оборудована пультовая охранная сигнализация.
Мебель, оборудование: Дом полностью меблирован: в столовой обеденный стол на 8 персон со столешницей из кварцевого агломерата с дорогими мягкими стульями/креслами, в гостиной основного дома и блока для персонала, а также в одной из гостевых спален - мягкие гарнитуры с обивкой из велюра, в спальнях двуспальные кровати, тумбы, комоды, гардеробные, оборудованные новыми современными системами хранения. В закрытой террасе на первом этаже большой стол 3.93х1.15м на 16 персон со столешницей из эпоксидной смолы, на террасе второго этажа и в спа-зоне стильная плетеная мебель. В основной кухне П-образный кухонный гарнитур с большой рабочей поверхностью, глянцевыми фасадами бежевого цвета и всей необходимой встроенной техникой: два однокамерных холодильника в цвет гарнитура, посудомоечная машина (60 см), электрическая варочная панель, духовой шкаф, микроволновая печь, вытяжка. В блоке для персонала также полностью оборудованная кухня со всей техникой (холодильник, морозильная камера, варочная панель, духовой шкаф, посудомоечная машина). Стиральная и сушильная машины, большие современные телевизоры в гостиной, мастер-блоке, блоке для персонала. Во всех помещениях - карнизы, тюль, шторы, в т.ч. блэкаут.

Участок

Площадь участка, соток: 16
Тип участка: парковый
Благоустройство участка: участок со взрослыми лесными деревьями: березы, ели, сосны, лиственницы, клены и ландшафтным дизайном: газон, цветники, куртины можжевельника, прогулочные дорожки с освещением; дренаж вокруг дома и по участку

Полная информация об объекте в поселке Чароит КП (п.Ватутинки)

Фото


Планировки