Дом в поселке Согласие-1, 708 м2

Цена: 99 000 000 руб.
Код объекта: 316-959

Красивый и солидный дом в классическом стиле, с премиальной отделкой и мебелью. На участке также с гараж на 2 автомобиля с квартирой для персонала и домик для приема гостей с теплой отапливаемой кухней-столовой и летней зоной барбекю. В доме эффектная двухсветная гостиная, бильярдная со столом максимального размера, кинозал, сауна с купелью. Шикарный облагороженый участок с множеством взрослых деревьев - плодовых и декоративных. Статусный востребованный поселок с центральными коммуникациями.

Общая площадь строений: 708 м2 (Жилой дом 560 кв.м + Гараж с квартирой персонала 75 кв.м + Домик для приема гостей 73,2 кв.м)
Количество уровней: 3
Спален: 6. С/узлов: 4. Комнат всего: 8.
Опции: машиномест крытых: 2, в т.ч. в теплом гараже: 2; сауна; купель; квартира для персонала; терраса; камин; холодный подвал; русский бильярд на 12 футов, генератор (на весь дом), кинозал, маркиза.
Материал стен: кирпич
Облицовка стен: фасадная декоративная штукатурка, рустовка углов и окон, цоколь облицован искусственным камнем
Стадия готовности: меблирован
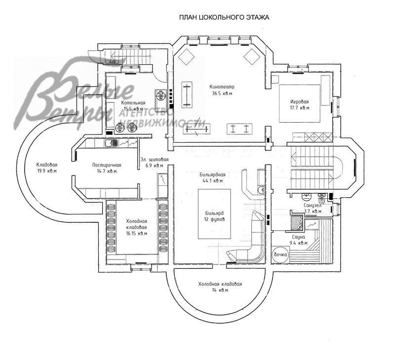
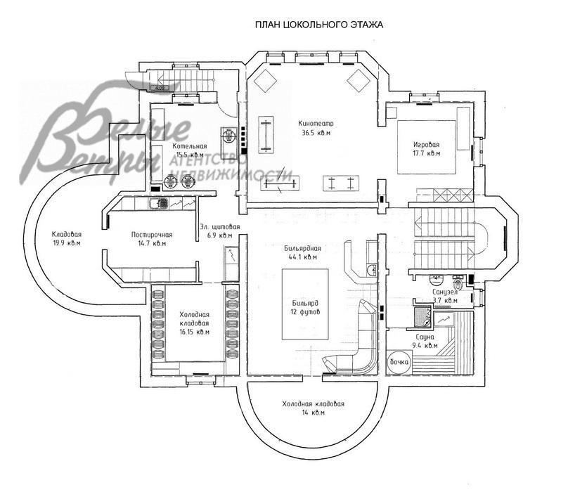
Цоколь: котельная 15,5 кв.м, кинотеатр 36,5 кв.м + игровая 17,7 кв.м, бильярдная 44,1 кв.м, сауна с бочкой 9,4 кв.м, душевой 3,7 кв.м и санузлом 3,6 кв.м, постирочная 14,7 кв.м с кладовой 19,9 кв.м, электрощитовая 6,9 кв.м, холодная кладовая 16,15 кв.м, холодная кладовая 14 кв.м.
1-ый этаж: прихожая, холл 25,7 кв.м, кухня 15,5 кв.м, столовая 22,1 кв.м с выходом на террасу 31,2 кв.м, двухсветная гостиная 54,1 кв.м, гардероб 10 кв.м, санузел 7 кв.м, спальня 15,6 кв.м, спальня 17,7 кв.м, лестница 4,6 кв.м.
2-ой этаж: холл-галерея над вторым светом 28,2 кв.м, мастер-спальня 27,2 кв.м с санузлом 8,5 кв.м и гардеробной 8,6 кв.м и балконом 11,9 кв.м, спальня 17,7 кв.м, спальня 17,7 кв.м, спальня 18,1 кв.м, санузел 14,5 кв.м.
Описание внутренней отделки: выполнена классическая отделка дома с многоуровневыми потолками из гипсокартона, лепниной и большим количеством освещения. В отделке использованы натуральные материалы, мрамор, гранит, коллекционная плитка, на втором этаже ковролин, ламинат. Стены в комнатах покрашены, в санузлах плитка. Лестница железобетонная шириной 1,2 м, ступени из мрамора, с коваными патинированными перилами. Все санузлы укомлектованны необходимой сантехникой: круглая ванная-джакузи, душевые кабины, унитазы, биде, раковины. Все коммуникации разведены под ключ, теплые полы везде, где плитка, розетки и выключатели SIMON, радиаторы KERMI. Межкомнатные двери МДФ, светлые с филенками.
Инженерное обеспечение: в доме установлены котел газовый напольный WOLF, бойлер REFLEX 300 л, многоступенчатая система очистки воды. В каждой комнате кондиционеры Panasonic. Бензиновый генератор VANGUARD (питает весь дом).
Мебель, оборудование: все комнаты укомплектованы роскошной итальянской мебелью в классическом стиле или барокко. Установлен кухонный гарнитур со столешницей из натурального гранита со встроенной газовой плитой, встроенная духовка и микроволновка BOSH, холодильник LIEBHERR, полубарный остров со столом и стульями 4 шт., обеденная группа из массива дерева. Большое арочное зеркало в холле, телевизоры, диваны, изящные журнальные столики и консоли и комоды. В двусветной гостиной многоярусная хрустальная люстра, окна украшены шторами с ламбрекенами, на полу ковер.
Дополнительные строения:
- Гараж с квартирой персонала площадью 75 кв.м, кирпичный, в стиле основного дома: 1-ый этаж: гараж на 2 авто, отапливаемый, на 2-ом этаже квартира персонала (с кухней и санузлом);
- Домик для приема гостей 73,2 кв.м, капитальный, всесезонный, в стиле основного дома, с отапливаемой частью ок.40 кв.м (отапливается электричеством - теплые эл. полы и конвекторы, окна ПВХ, мягкая кровля), в которой полностью оборудованная мебелью и техникой кухня-столовая, кладовая, гостевой санузел и неотапливаемой крытой незастекленной частью - с мангалом. В обеих частях - электричество, водопровод, канализация. Итальянский кухонный гарнитур со встроенной техникой, обеденная зона, кондиционер Panasonic.

Участок

Площадь участка, соток: 22.5
Тип участка: с ландшафтом и взрослыми деревьями
Благоустройство участка: облагороженный участок со множеством взрослых декоративных и плодовых деревьев, организована система автополива (9 контуров) по всему участку, вымощены дорожки, газон.Целый яблоневый сад разных сортов, сливы, груши, вишни, черешни... Более 20 туй, клены, каштаны, осины, декоративная береза, множество кустарных растений, круглые туи и 6 рододендронов, можжевельники, лиственница. Пионы и тюльпаны. Кустарники: крыжовники, смородина черная и красная. Организован дренаж по всему участку с выводом в центральную ливневую систему.

Полная информация об объекте в поселке Согласие-1

Фото


Планировки