Дом в поселке Микрорайон К (Троицк), 517 м2

Цена: 72 000 000 руб.
Код объекта: 312-803

Элегантный меблированный кирпичный дом в стиле фьюжн со множеством зон для полноценного отдыха и развлечений. В доме есть бассейн, джакузи, ИК-сауна, фитобочка, бильярдная, большая детская игровая. В интерьере – высокие потолки с многоуровневым освещением и европейские отделочные материалы, дополненные изящной мебелью. Дом стоит на участке, граничащем с лесом. Ландшафт участка объединяет классическую парковую концепцию и природную лесную зону с реликтовыми деревьями. Участок украшают цветники, альпийская горка, есть детская площадка, закрытые беседки и зона барбекю. В сервисных строениях – квартира для персонала, мастерская, гостевые комнаты. Участок находится в окружении достойных соседей в охраняемом коттеджном посёлке рядом с городской инфраструктурой.

Общая площадь строений: 517 м2
Количество уровней: 2
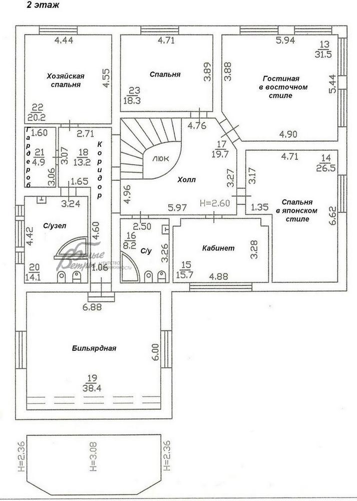
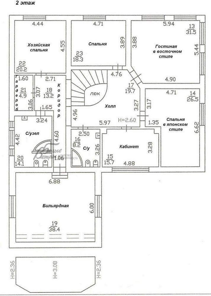
Спален: 5. С/узлов: 3. Комнат всего: 9.
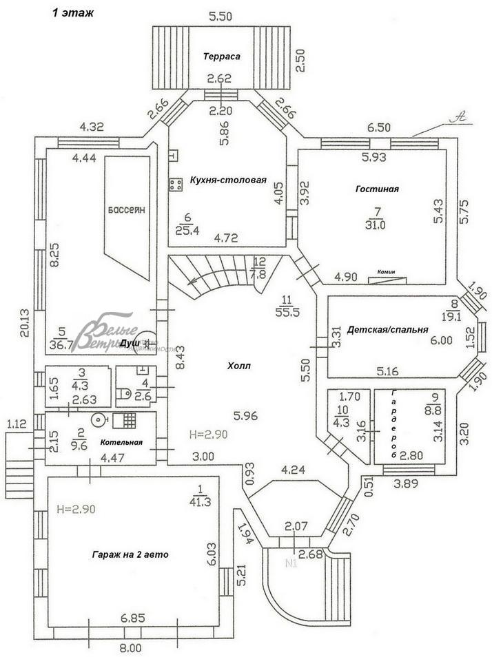
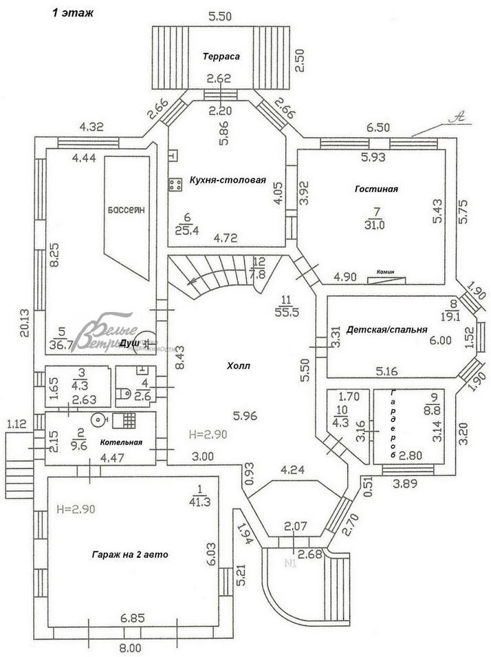
Опции: бассейн; машиномест крытых: 2, в т.ч. в теплом гараже: 2; квартира для персонала; терраса; камин; бильярдная, комната отдыха с фитобочкой, инфракрасная сауна, джакузи.
Материал стен: кирпич
Облицовка стен: штукатурка
Стадия готовности: меблирован
1-ый этаж: крыльцо, прихожая и холл 55,5 кв.м, гардеробная 9 кв.м, спальня 19 кв.м, гостиная с камином 31 кв.м, кухня-столовая 25 кв.м с выходом на открытую террасу, зона бассейна 36,5 кв.м (чаша бассейна 5,5×1,8 м) с душевой кабиной, парной и фитобочкой, санузел 3 кв.м, котельная 9 кв.м, постирочная 4 кв.м; гараж на 2 автомобиля 41 кв.м
2-ой этаж: холл 20 кв.м, мастер-спальня 20 кв.м с коридором 13 кв.м, гардеробной 5 кв.м, санузлом с ванной (джакузи) 14 кв.м, кабинет 16 кв.м, бильярдная 38 кв.м, детская игровая 32 кв.м, спальня 18 кв.м, спальня 26 кв.м, санузел 8 кв.м с ванной
Описание внутренней отделки: выполнена отделка под ключ, материалы – премиальные, испанского и итальянского производства. На стенах поклеены обои, на полу 1-го этажа - плитка, на полу 2-го этажа - паркетная доска и штучный паркет. Потолки – многоуровневые со встроенным освещением. Установлены межкомнатные двери, изготовленные по индивидуальному заказу, из массива дуба с лаковым покрытием, пластиковые подоконники, кованые решетки на всех окнах. В санузлах – тёплые полы. На второй этаж ведёт железобетонная лестница со ступенями, отделанными дубом
Инженерное обеспечение: коммуникации разведены: отопление – через котёл, горячее водоснабжение – через бойлер (США). Установлены двойная система очистки воды Water Boss и усиленная очистная колонна в бассейне, система принудительной вентиляции, сигнализация с выводом на пульт полиции, камеры по периметру дома, датчики движения внутри дома
Мебель, оборудование: дом обставлен всей нужной мебелью. На кухне: гарнитур со встроенной техникой, обеденная группа на 6 персон. В холле 1-го и 2-го этажей – изящная мягкая мебель. В гостиной: диванная группа, телевизор. В каждой спальне – спальный гарнитур и места для хранения вещей. В санузлах установлена итальянская сантехника
Дополнительные строения: - гостевой дом с квартирой для персонала;
- закрытая беседка на 15 человек;
- зимняя беседка 26 кв.м,
- зона барбекю,
- детская площадка

Участок

Площадь участка, соток: 36.5
Тип участка: с деревьями
Благоустройство участка: на участке создана гармоничная ландшафтная композиция, сочетающая классическую концепцию озеленении участка с ровным газоном, мощёными дорожками и подсветкой с лесной зоной. На участке растут более 70 реликтовых деревьев: дуб, ель, осина, береза, тополь. Высажены декоративные кустарники и цветы, создана альпийская горка. Также обустроен французский огород. По периметру участка проходит дренажная система

Полная информация об объекте в поселке Микрорайон К (Троицк)

Фото


Планировки